移動廁所化糞池安裝圖集!
雨施捷是移動衛生間廠家之一,也是成套設備和安裝完善的廠家,現把移動廁所的化糞池安裝和兄弟廠家分享一下
以下為化糞池安裝圖紙,僅供參考!
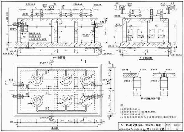
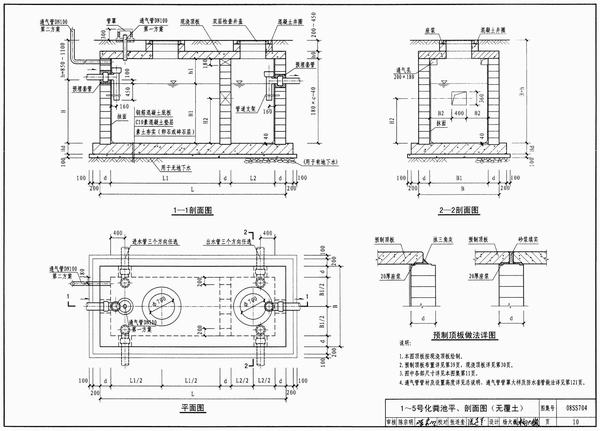
一、磚混結構化糞池工藝
二、混凝土化糞池工藝圖
三、玻璃鋼化糞池安裝工藝
相關推薦
雨施捷是移動衛生間廠家之一,也是成套設備和安裝完善的廠家,現把移動廁所的化糞池安裝和兄弟廠家分享一下
以下為化糞池安裝圖紙,僅供參考!
一、磚混結構化糞池工藝
二、混凝土化糞池工藝圖
三、玻璃鋼化糞池安裝工藝