
-
致 謝:
遼寧阜新彰武環衛處先后兩次.....【查看詳情】

-
致 謝:
蟒山森林公園環保廁所改造工程...【查看詳情】
產品適用技術范圍:產品造型同時適用于微生物移動廁所、泡沫封堵型移動廁所、免水打包型移動廁所、直排水沖型移動廁所、高壓氣水沖移動廁所。

配置:
1、基本配置:不銹鋼自動開啟蹲便器、小便器、防滑火燒板地面、化妝鏡、衣帽鉤、手紙盒、廢紙簍、照明燈、換氣扇、指示牌等
2、備選配置:小便器、洗手盆、有無人指示標牌、背景音樂、求助按鈕、空調、干手機、飄香機、裝飾畫、智能空氣處理系統、智能溫度控制系統、無水凈手機等。


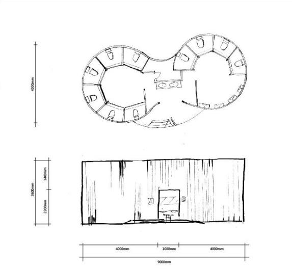
公廁效果圖及平面圖!